Kuvaus
TEKNISET TIEDOT
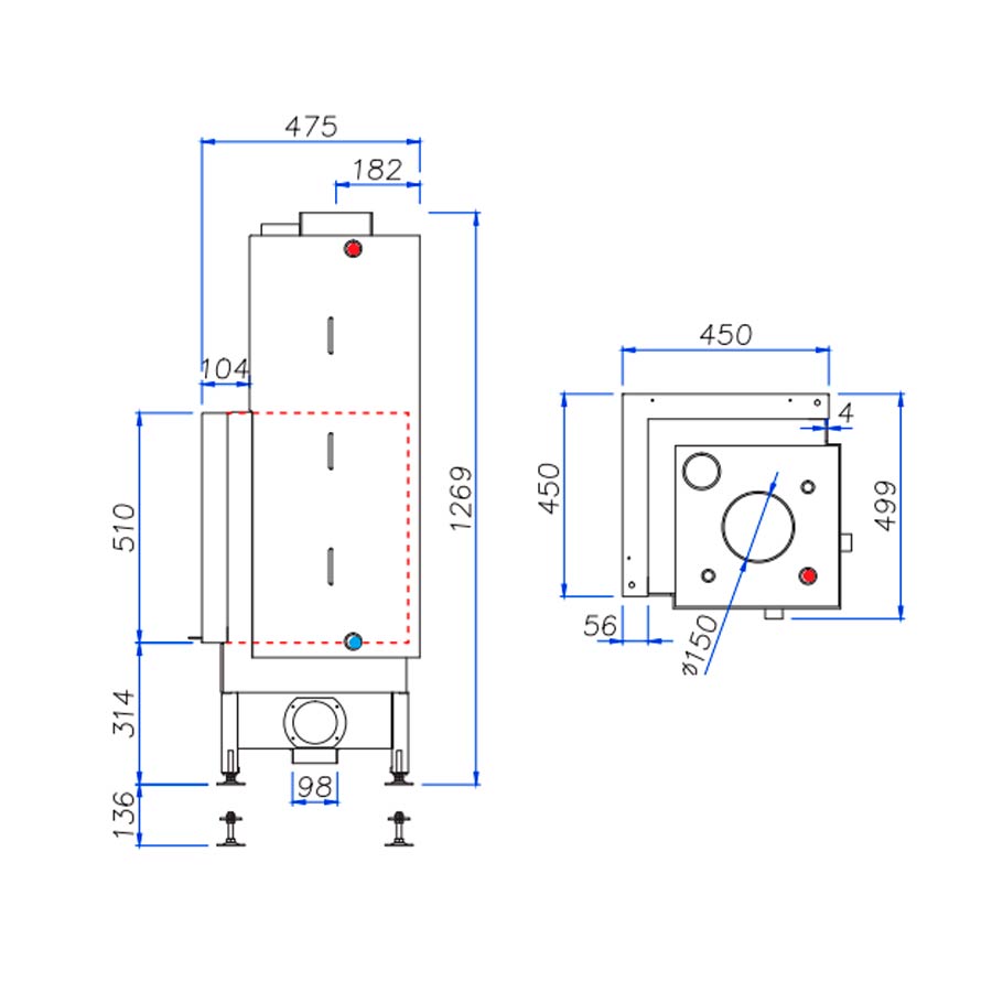
Mitat (L x K x S): 499 x 1269 x 499 mm
Jatkuva maksimiteho, BImSchV päästö vaatimuksilla: 8 kW
Teho huonetilaan: 4 kW
Vesi/huonetehon suhde: 2:1
Paino: 164 kg
Tulipesän koko: 310 x 490 x 310
Luukun koko: 450 x 510 x 450 mm
Lämmitysala: 286 m³
Hormiliitos: 160 mm, päältä ulkohalkaisija
Maksimi verkkopaine: 3 bar
Lämmönvaihtimen tilavuus: 20 l
Säädettävä ensiöilma: kyllä
Säädettävä toisioilma: kyllä
Hyötysuhde: 89 %
Polttoaineen kulutus: 3,3 kg / h
Savukaasujen lämpötila: 180 °C
CO päästöt: 8,0 (13%-O2)
Hiukkaspäästöt: 39 mg/Nm³
Tuplalasi: ei
Ala-aukkojen minimi pinta-ala: 400 cm²
Yläaukkojen minimi pinta-ala: 600 cm²
Kapea kulmalasinen vesitakka josta ei ominaisuuksia puutu.
Sopii asennettavaksi alipaineistettuihin / passiivitaloihin. Sopii hyvin nurkkaan asennettavaksi, tai kohteisiin jossa takan koolla on rajoituksia.
Tulipesä on valmistettu keraamisista elementeistä, jotka puskuroivat itseensä lämpöä. Puskuroitu lämpö mahdollistaa puhtaamman palamisen tulipesässä, sekä varaa lämpöä, joka mahdollistaa pitkän jälkilämmön viimeisen pesällisen jälkeen. Yhdessä tuplalasin kanssa polttotapahtuma huipputehokas pieneen kokoonsa nähden. Seisontajaloissa säätö. Ulkoisen korvausilmanotto voidaan vaihtaa oikealle, taakse tai vasemmalle.
Sopii erityisesti käytettäväksi passiivi ja matalaenergiataloissa, sekä uusissa omakotitaloissa, jossa lämpöä ei juuri haluta huoneeseen. Takan lämmönvaihdin voidaan lisäeristää putkitöiden jälkeen, jolloin tehoa siirtyy enemmän veteen.
Takalla voidaan polttaa suurta puumäärää erittäin pitkään mutta kuitenkin hyvin puhtaasti, joka mahdollistaa polttopuun tehon jakamisen pitkälle aikavälille (pesä täyteen ja veto pienelle = paloaika jopa 3 h). Toimii erinomaisesti tilanteissa jossa energiankulutusta on pitkälle aikavälille.
Vakiona säätöjalat, ulkoinen paloilmanottoliitäntäpaikka (vasemmalta, oikealta tai alapuolelta).
Suositeltu varaajan koko: 500 l
Takan kotelo voidaan valmistaa kätevästi Skamo Enclosure kalsiumsilikaattilevystä
Takuu: 12 vuoden puhkipalamattomuustakuu lämmönvaihtimelle!
Ei koske lasia (rikkoutuu vain iskusta)
Ei koske tulipesän keraamiosia (käytössä kuluva osa)